Condo Renovation

Chicago | Loop

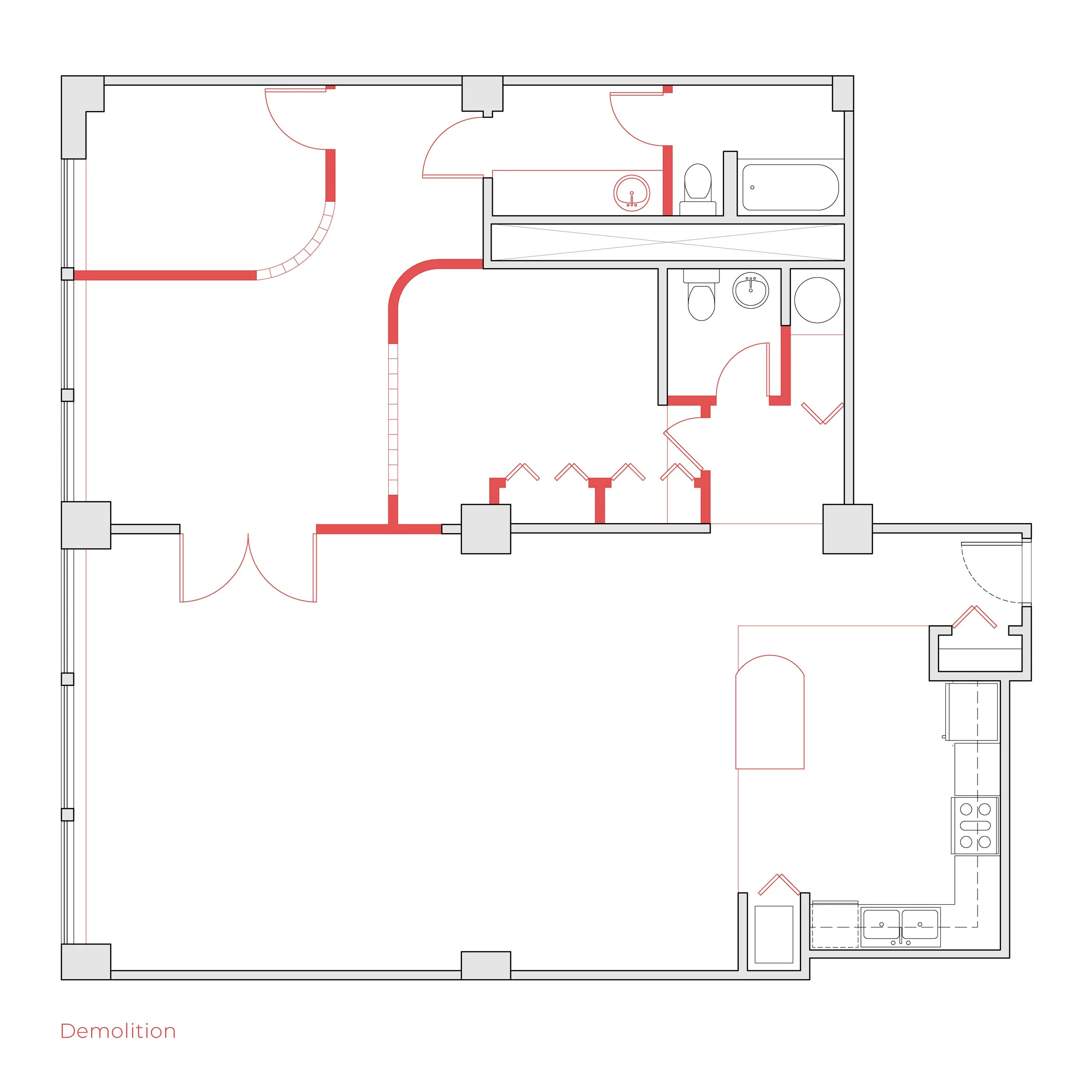
Habit Architects provided architectural design and permit-ready construction drawings for a Chicago condominium interior renovation that transformed a challenging deep floor plate with limited exterior windows into a bright, code-compliant home. Former renovation work left the unit with an inefficient interior partition layout; this condo remodel significantly reworked the plan by relocating partitions, creating a compact enclosed home office, and introducing an interior bedroom.

To meet natural light and ventilation code requirements, operable clerestory windows were added to bring borrowed daylight deeper into the unit and support code-compliant ventilation. The frosted glass was paired with acoustically rated frames for noise isolation.

The scope also included a half-to-full bathroom conversion with a new shower addition, targeted electrical upgrades including updated and relocated power outlets, and lighting modifications to support the new layout. Ample built-in storage was integrated throughout, taking full advantage of the unit’s high ceilings, while the building’s exposed structural elements were intentionally preserved to create a distinctive ceiling finish. This condominium renovation delivered a more functional and modern layout.

Previous
Previous

Private Residence

Next
Next

Bowtie Armchair